A VENDRE – Appartement avec coin nuit disposant d’une verrière avec balcon et box – COURBEVOIE MARCEAU
- 352 000€ F.A.I
- 352 000€ F.A.I
Description
L’agence immobilière Courbevoie ASM immobilier vous présente en exclusivité :
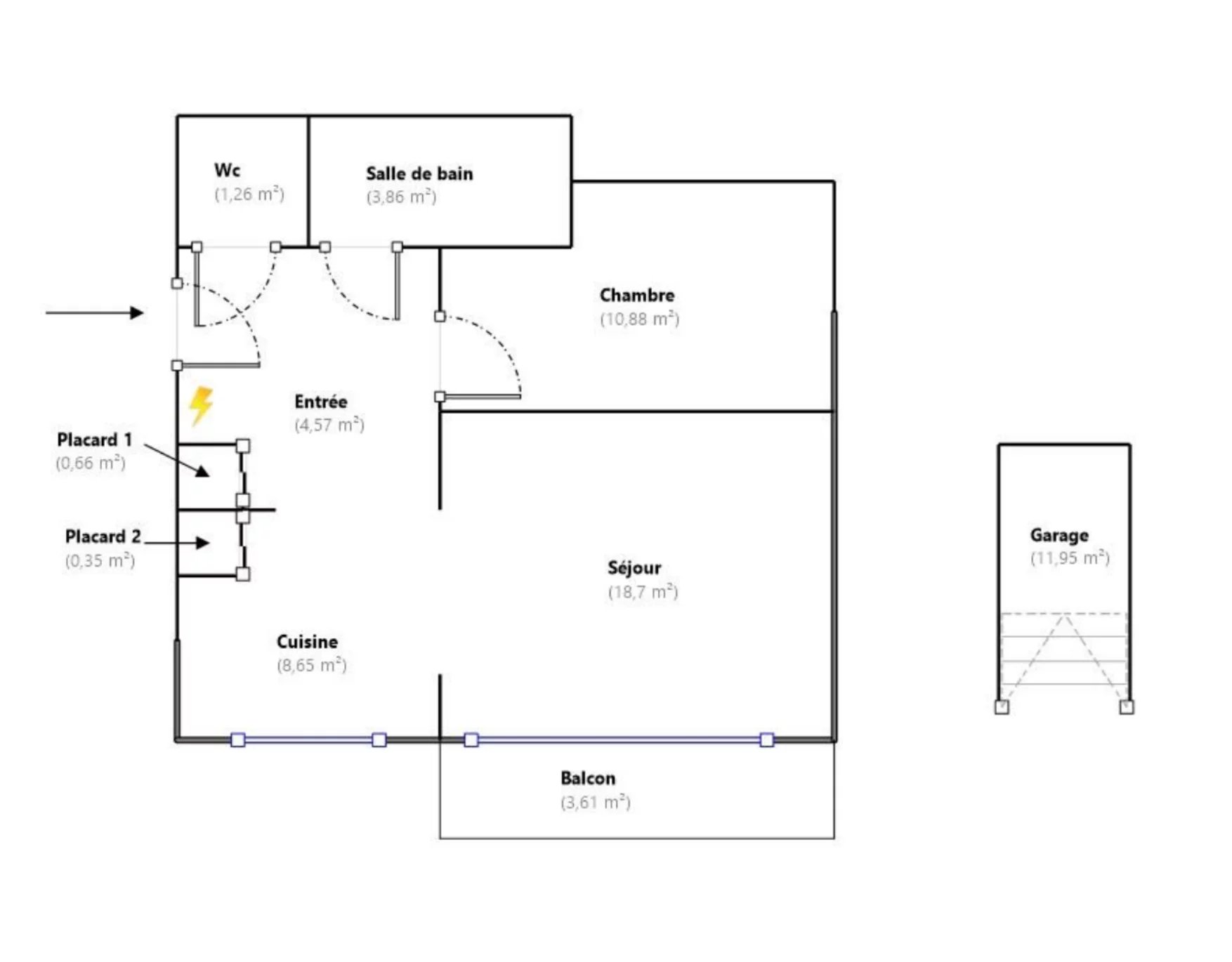
Un bel appartement de 49 m², situé au 6ᵉ étage avec ascenseur d’une résidence bien entretenue sur l’avenue Marceau à Courbevoie. Rénové en 2025, ce bien offre un cadre de vie moderne et confortable avec une vue dégagée et une exposition Ouest, idéale pour profiter d’une belle luminosité tout au long de la journée.
L’appartement se compose d’une entrée avec rangements, d’un séjour avec cuisine ouverte totalisant près de 27 m², d’un coin nuit spacieux en second jour de 10,88 m², d’une salle de bains avec double vasques et de toilettes séparées adaptées PMR. Un balcon de 3,6 m² vient compléter cet espace, parfait pour vos moments de détente.
Les prestations sont complètes : double vitrage, volets roulants électriques, fibre optique, porte blindée, digicode, interphone vidéophone, accès handicapé et alarme incendie. Le chauffage et l’eau chaude sont individuels électriques, assurant une maîtrise de vos consommations.
Un box fermé de 12 m² en sous-sol est inclus dans le prix.
Classe énergétique : D (192 kWhEP/m².an) – Émissions : B (6 kg CO₂/m².an).
Idéalement situé à deux pas du centre-ville, des commerces, écoles, crèches et des transports (bus et tram), cet appartement allie confort, praticité et qualité de vie.
Informations et visites sur demande.
Détails
Mis à jour le avril 10, 2026 à 4:52 pm-
Référence 86806745
-
Prix 352 000€ F.A.I
-
Surface 49 m²
-
Pièces 2
-
Salle de bains 1
-
Type de bien Appartement
-
Statut de propriété A vendre
-
Honoraires Les honoraires sont à la charge du vendeur.
Biens similaires
- ASM immobilier
